Nowy skrót w centrum miasta

Dodano 20 kwietnia 2022 Miasto Leszno kontynuuje budowę nowego połączenia pieszo-rowerowego między wschodnią częścią miasta, a jego centrum. Po Al. Juliusza Słowackiego i nowej drodze przy Lidlu, przyszedł czas na wybudowanie zupełnie nowego ciągu komunikacyjnego, który połączy Al. Zygmunta Krasińskiego z ul. Przemysłową, a stamtąd już tylko krok na dworzec kolejowy.

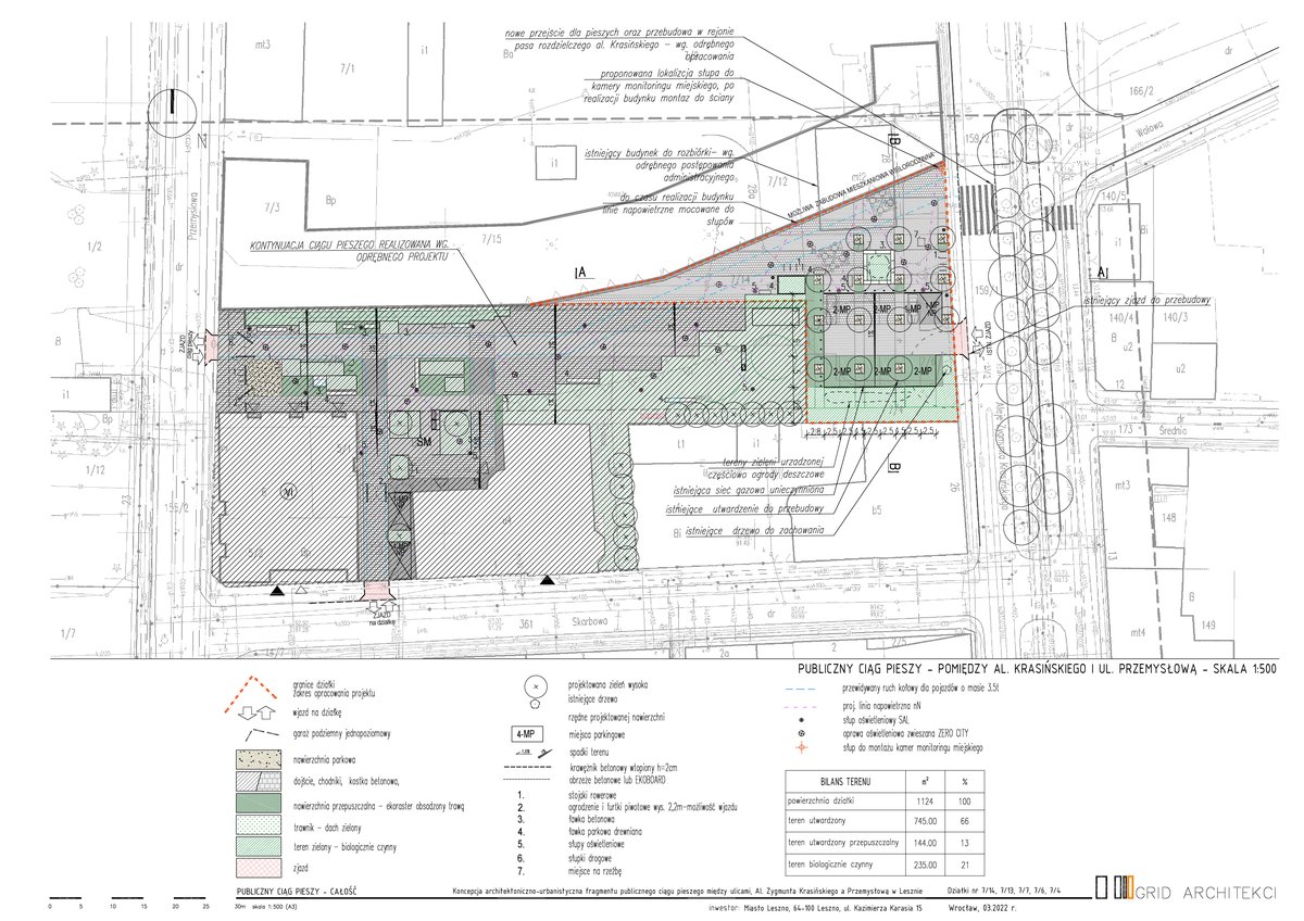
Od strony ul. Przemysłowej ciąg pieszo-rowerowy realizuje prywatny inwestor, który w tej części miasta buduje nowe lokale mieszkalne i usługowe. Miasto przygotowuje się do wykonania swojej części ciągu komunikacyjnego, który będzie kontynuował i uzupełniał już zrealizowane fragmenty „deptaku”. Wykonana w tym celu koncepcja obejmuje również zagospodarowanie niewielkiej działki należącej do miasta, na której ma powstać niewielki parking i ogród deszczowy.

Dla okolicznych mieszkańców miejsce ma funkcjonować jako zielony skwer, na co dzień z miejscem do zaparkowania 12 samochodów, a okazjonalnie jako plac do lokalnych wydarzeń. W pasie wzdłuż miejsc postojowych oraz w donicy wydzielonej betonowymi ławkami przewidziano ogród deszczowy - obniżenie terenu obsadzone roślinnością odporną na czasowe zalewanie - z awaryjnym odpływem do kanalizacji deszczowej, stanowiącym zabezpieczenie przed zalaniem. Samochody mają parkować na nawierzchni z estetycznej ekokraty, która pozwala na retencjonowanie wody opadowej. Teren byłby objęty monitoringiem. Unikalnego charakteru przestrzeni ma dodawać oświetlenie zaprojektowane w formie opraw wiszących na linach.

Zaniedbany teraz teren ma się zmienić w mały, lokalny park kieszonkowy. Nasadzenia miejskich drzew oraz przyjęte rozwiązania zielonej infrastruktury są jednym z najbardziej skutecznych i jednocześnie najłatwiej dostępnych narzędzi do adaptacji miast do zmian klimatu i walki z ich następstwami takimi jak: zanieczyszczenie powietrza, problem z zagospodarowaniem wód opadowych, zaburzenia mikroklimatu miejskiego, zjawisko miejskiej wyspy ciepła, hałas i zaburzenia bioróżnorodności.